5264 NE 20TH AVE Portland, OR 97211
Virtual Tour Virtual Tour 2 Print this Listing
Price:
$879,900
Beds:
4
Baths:
2.0
Ft²:
2852
Acres:
0.12
MLS#:
453609416
Lot Size:
5,000 to 6,999 SqFt
Type:
Detachd
Zone:
R2.5
County:
Multnomah
Style:
3 Stories
Yr Built:
1913
Status:
Active
Levels:
3
Garage:
Converted, Detached
Nhood/Bldg:
ALBERTA ARTS DISTRICT
Heat:
Forced Air
Fireplace:
Wood Burning
Roof:
Composition
Elem:
Vernon
Middle:
Vernon
High:
Jefferson
Area:
Portland Northeast
Exterior:
Deck, Fenced, Guest Quarters, Yard
Courtesy of:
Redfin
Remarks:
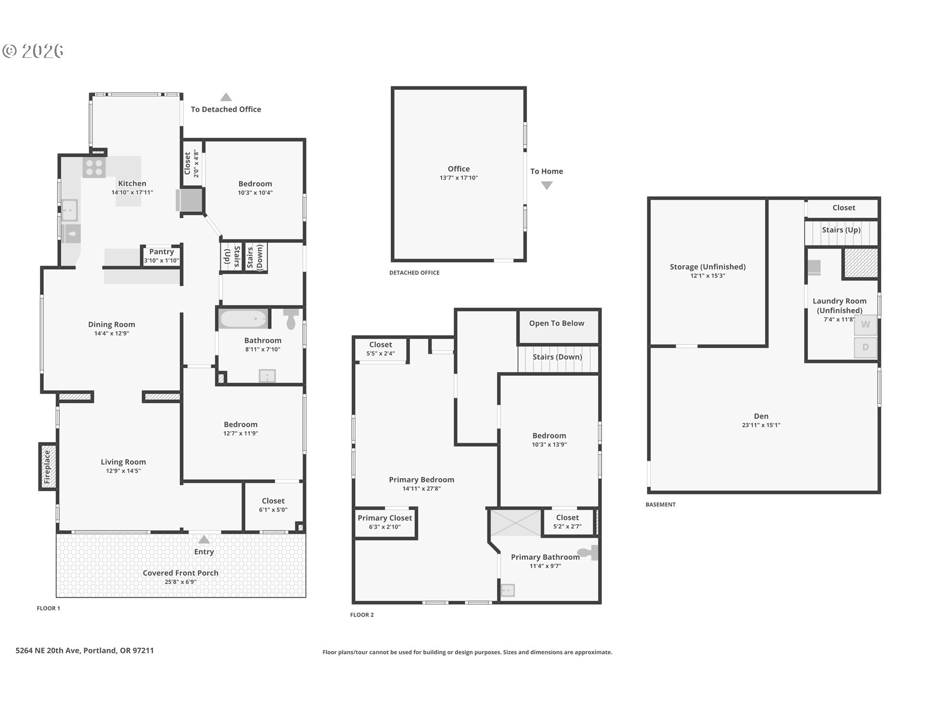
Classic Alberta Arts District Craftsman with undeniable charm! This inviting home greets you with a spacious covered front porch perched above native landscaping, setting the tone for what’s inside. The living room is warm and welcoming, featuring fir floors, beam ceilings, abundant natural light, and a cozy fireplace flanked by timeless built-ins. The formal dining room also offers convenient built-ins and sun-filled windows, ideal for everyday living or entertaining. The updated kitchen and adjacent breakfast nook overlook the thoughtfully landscaped backyard and a detached studio/home office featuring a mini-split, vaulted ceiling with exposed beams, and skylights; perfect for remote work or creative pursuits. The primary suite is a serene retreat with skylights, bonus space ideal for a home office or reading nook, and well-designed closet storage. Three additional bedrooms, and bonus living space in the basement, provide flexibility and room to grow. Recent improvements include a new roof and fresh exterior paint in 2024, plus basement waterproofing and sump pump installation for added peace of mind. All just steps from Alberta Street’s vibrant cafes, bars, and local favorites, this one truly has it all. Mortgage savings may be available for buyers of this listing. [Home Energy Score = 5. HES Report at https://rpt.greenbuildingregistry.com/hes/OR10135420]

We’ll get back to you as soon as we’re able. But if you need us sooner, feel free to call Brian at 503-810-2219 with your questions.


Back to listings